2600 Highway 14 Millbrook, AL 36054

Other MLS #: 565709 Courtesy Of Sun Real Estate, Inc.

Property InformationDescription

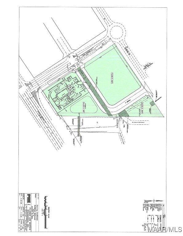
The absolute Best available Commercial lot in front of the NEW 17 Springs Project off Hwy 14 in Millbrook. Here is your chance to start or move your business to this exciting new location, Pad ready.. Site. This 1.75 Acres will be adjacent to the new Guthries Chicken Restaurant. This site is directly in front of the Massive 17 Springs Project, only months away from completion and on the main Traffic Lighted entrance.
MORTGAGE CALCULATOR

Features

  • Legal Description: 1.75 Acres yet to Be recorded
  • MLSID: 565709

MAP & DIRECTIONS

Get Directions
2600 Highway 14, Millbrook, AL 36054
View Directions
Copyright © 2025 Montgomery Area Association of Realtors MLS. All rights reserved. All information provided by the listing agent/broker is deemed reliable but is not guaranteed and should be independently verified. Information being provided is for consumers' personal, non-commercial use and may not be used for any purpose other than to identify prospective properties consumers may be interested in purchasing.